Për Shitje

BANESE ME 105.5 m² NE OBJEKIN 4 "ART CONSTRUCTION"

Kontakto

  • (0)
  • 585 Pamje
  • 02-gus-2025
  • Prishtina, Kosova

Përshkrimi

Objekti 4 – Projekti më i ri banesor nga “Art Construction” në lagjen Mati 1, Prishtinë

Ju prezantojmë projektin më të ri të ndërtuar nga investitori i njohur “Art Construction”, i cili po zhvillohet në një nga zonat më të kërkuara të Prishtinës – në rrugën Muharrem Fejza, lagjja Mati 1.

Të dhëna të përgjithshme:
  • Sipërfaqja totale e parcelës: 2,650 m²
  • Sipërfaqja e gjelbër: 596 m²
  • Sipërfaqja e përgjithshme ndërtimore: 9,820 m²
  • Tereni: kryesisht i rrafshët me një pjerrtësi prej 5%
Struktura e objektit:
  • Dy blloqe banimi – Blloku A dhe Blloku B
  • 70 njësi banesore me ndriçim natyral dhe organizim funksional
  • 6 lokale afariste për biznese të vogla dhe të mesme
  • 71 parkingje nëntokësore dhe 71 depo banesore
  • 23 parkingje të jashtme jashtë perimetrit
Lokacioni dhe planifikimi urbanistik:

Projekti është pjesë e bllokut urbanistik “C9” në kuadër të planit rregullues të lagjes Mati 1. Rrjetet rrugore të brendshme janë të dizajnuara për qarkullim të lehtë dhe efikas, si për automjete ashtu edhe për këmbësorë.

Hapësira të përbashkëta dhe ambient i jashtëm:
  • Hapësira të gjelbëruara të mirëorganizuara
  • Zona për lojëra të fëmijëve
  • Plato për këmbësorë që lidhet me arkitekturën e kompleksit
  • Infrastrukturë moderne për qasje të sigurt dhe të lehtë

     

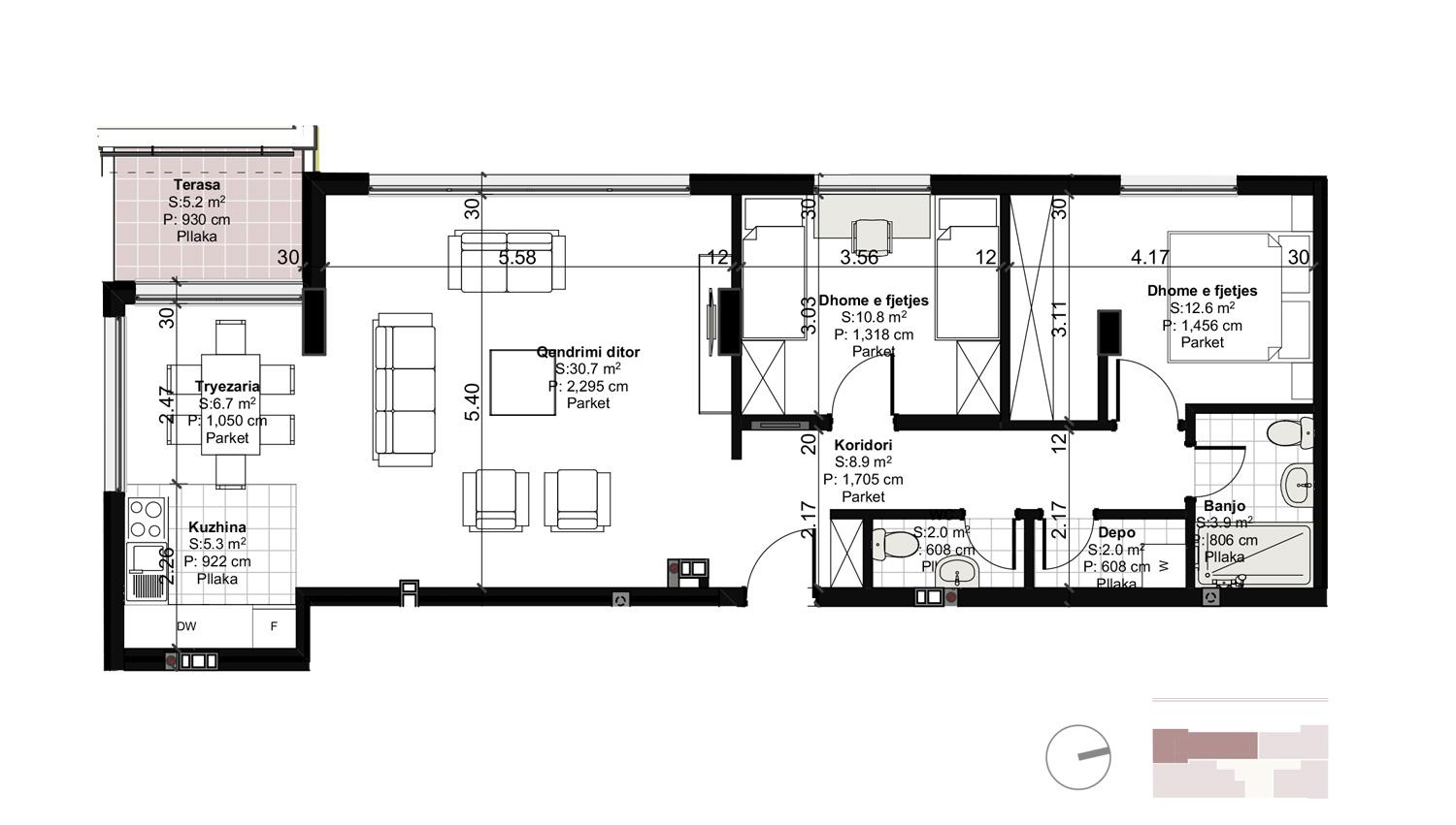
Detajet e njësisë banesore

Lokacioni: Mati 1

Objekti: 04

Llamella: B

Sipërfaqja: 105.5 m²

Dhoma: 3

Banjo: 2

Tipi: 8

Banesa:     A34  

Na kontaktoni

📍 Adresa: Lagjja Mati 1, Rr. Muharrem Fejza, 10000 Prishtinë, Kosovë

📧 Email: info@artconstruction.org

📞 Telefoni: 045 191 120 / 044 552 205 / 038 728 632

🌐 Web & Rrjetet Sociale:

Përmbledhje
Prona ID: Banesa 105.55 m2
Lloji: Apartment
Dhoma: 3
Banjot: 2
Katrore: 106 m²
Lokacioni
Shkruaj një rishikim
0 Vlerësime
0 nga 5
Kontakto Agjensine
Pronat e veçuara

Pasuria më e fundit

Banesa në SHITJE/91m2
Për Shitje
Apartment

Prishtina, Kosova

  • 2
  • 2
  • 91 m²
Future Real Estate
Future Real Estate

3,000€

Banesa në SHITJE/88m2
Për Qira
Apartment

Prishtina, Kosova

  • 3
  • 2
  • 88 m²
Future Real Estate
Future Real Estate

115,000€

Future Real Estate
Future Real Estate

Na kontaktoni

Future Real Estate
Future Real Estate

79,300€

Future Real Estate
Future Real Estate

65,900€

Banesa me QIRA/100m2
Për Shitje
Zyre

Prishtina, Kosova

  • 2
  • 2
  • 100 m²
Future Real Estate
Future Real Estate

600€

Future Real Estate
Future Real Estate

Na kontaktoni

Future Real Estate
Future Real Estate

141,600€